Trilocale in vendita

Torino, Via verolengo - Madonna Di Campagna
€ 134.000
3 locali 3 locali
85 Mq 85 Mq
1 bagno 1 bagno

Trilocale in vendita

Torino, Via verolengo - Madonna Di Campagna

Descrizione annuncio

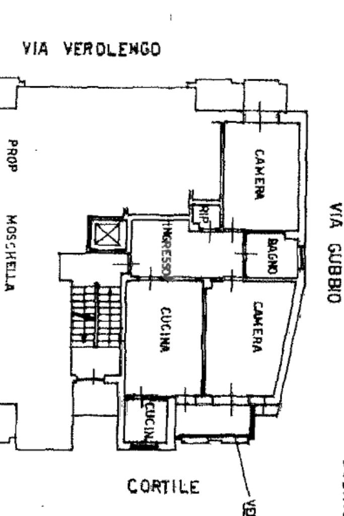
La soluzione si trova in Verolengo in prossimità di via Gubbio, nel cuore di Madonna di Campagna. La zona è servita da diverse attività commerciali, supermercati, scuole ed è circondata da aree verdi pubbliche, tra le quali, il vasto parco Dora. Nelle vicinanze vi sono le fermate dei tram 3 - 9 e del bus 72 – 72/; risulta agevole accedere all’autostrada A55 e la Torino - Caselle che distano solo 8 minuti. Lo stabile, edificato negli anni Settanta, è elevato su undici piani fuori terra ed è dotato di ascensore. L’appartamento si trova al terzo piano. Accedendo dal portoncino blindato d’ingresso, siamo accolti dal disimpegno che divide i vari ambienti della casa. Il soggiorno è dotato di portafinestra la quale permette di accedere al balcone verandato comunicante con una delle due camere, avente affaccio su via Gubbio. Completa la zona giorno un cucinotto, con finestra, all’interno del quale è possibile realizzare una comoda cucina angolare su misura. La zona notte è composta di due camere da letto, generose e semplici da arredare, dotate entrambe di una portafinestra ciascuna. Quest’ultime permettono di accedere al rispettivo balcone, avente affaccio sull’interno cortile la prima, mentre al balcone lato via Verolengo la seconda. Il bagno è funzionale, ha la finestra, la vasca, la doccia, i sanitari utili e i collegamenti per la lavatrice. Infine è presente un comodo ripostiglio, locale utile per mantenere l’ordine all’interno dell’abitazione. La soluzione si presenta in condizioni per lo più originali, con materiali ed elementi tipici dell’epoca di costruzione dello stabile, con particolare riferimento alla pavimentazione in marmo e in parquet in una delle due camere. Il riscaldamento è centralizzato dotato delle termovalvole con i relativi contabilizzatori di calore volti a ottimizzare sia costi che consumi. La tripla esposizione garantisce ariosità in tutta la casa. Completa la proprietà la cantina al piano interrato. L’appartamento sarà disponibile da Luglio 2026.

Mostra tutto

Nelle vicinanze

Trasporto pubblico Trasporto pubblico
Principi D'Acaja
Principi D'Acaja
2,1 Km
Bernini
Bernini
2,3 Km
Madonna di Campagna
Madonna di Campagna
950 m
Torino Dora GTT
Torino Dora GTT
1,1 Km
Fermata 182 Largo Borgaro
Fermata 182 Largo Borgaro
170 m
Ricariche auto elettriche Ricariche auto elettriche
Bluetorino Stradella
590 m
Edit Torino
1,6 Km
Lidl Altessano
1,8 Km
Bluetorino Risorgimento
2,1 Km
evway TO Statuto
2,2 Km
Scuole Scuole
Scuola Media Statale Piergiorgio Frassati
510 m
Scuola elementare Giuseppe Allievo
700 m
Istituto per il commercio succursale Boselli
730 m
Asilo Nido "La Nidiata"
770 m
Scuola media Antonio Vivaldi
790 m
Farmacia Farmacia
Sardi
220 m
Calvo
250 m
Toscana S.N..C
370 m
Farmacia Piazza Villari
510 m
Farmacia Garelli
600 m
Ospedali Ospedali
Amedeo di Savoia
830 m
Ospedale Amedeo di Savoia
880 m
Ospedale Maria Vittoria
1,6 Km
Ospedale Oftalmico
2,4 Km
Ospedale San Giovanni Bosco
2,9 Km
Supermercati Supermercati
Bennet
420 m
Pittarello
430 m
In Piedi
500 m
Prestofresco
520 m
Carrefour Market
680 m
Negozi Negozi
Sapori del Palato
20 m
Negozi
540 m
Calliope
920 m
Piazza Italia
940 m
Panetteria Costa Milena
960 m
Bar Bar
Bar Tabacchi
510 m
Supermarket
740 m
Bar
770 m
Bar
1,1 Km
Caffè Sicilia
1,2 Km
Ristoranti Ristoranti
Pizzeria Gli Ulivi
150 m
Moderno
610 m
Sa Crocoriga
640 m
Ristorante Birghiotto
690 m
L'Alternativa
720 m
Mostra tutto

Caratteristiche

Rif.:
61192244
Piano:
3 di 10 con ascensore (Piano medio)
Balconi:
2
Camere da letto:
2
Arredamento:
Assente
Condizionamento:
Assente
Mostra tutto
Prezzo Prezzo
€ 134.000
Rata mutuo Rata mutuo
€ 626 / mese
Spese annue Spese annue
€ 1.000
Proponi il tuo prezzoProponi il tuo prezzo
Immobile valutato con T·Valuta

Classe Energetica

D
D
D
D
D
D
D
D
D
EP globale non rinnovabile:
710.06 kW h/m² anno
EP globale rinnovabile:
0.59 kW h/m² anno
EP invernale del fabbricato:
EP estiva del fabbricato:
Anno di costruzione:
1970
Riscaldamento:
Centralizzato
Tipo impianto:
A radiatori
Tipo alimentazione:
Metano

Ti interessa visionare l'immobile?

Fissa un appuntamento  Fissa un appuntamento

Richiedi informazioni

Clicca su Leggi per aprire l'informativa
* Questi campi sono obbligatori

Calcola il tuo mutuo

Semplice e senza impegno
Anticipo

( % )
Mutuo

( % )

pochi semplici passi

inserisci i tuoi dati
Questionario completato
Grazie per aver richiesto un appuntamento senza impegno con un nostro Consulente del Credito e Assicurativo.

Hai inserito correttamente tutti i dati necessari e a breve riceverai una e-mail con un link da convalidare per inviare i tuoi dati.
Affiliato
Studio Mdc Sas
Via Borgaro, 72/d 10149 Torino (TO)

Il nostro staff


  • Michele Prencipe
    Affiliato

  • Valerio Bovero
    Collaboratore

  • Giovanna Bonadonna
    Collaboratrice

  • Antonio Drammis
    Collaboratore

  • Sara Mureu
    Coordinatrice
Via Borgaro, 72/d 10149 Torino (TO)
Zona: Madonna di Campagna-Via Borgaro
Mostra su mappa
Orari: Dal Lunedì al Venerdì: dalle ore 09.00 alle ore 12.30/dalle 15.00 alle 20.00 Sabato: dalle ore 09.00 alle ore 12.30/dalle 15.00 alle 18.00 Domenica: chiuso
Affiliato
Studio Mdc Sas
Via Borgaro, 72/d 10149 Torino (TO)

2026 Tecnocasa Franchising S.p.A. - P. IVA 08365160152 - Via Monte Bianco 60/A 20089 Rozzano (MI). Ogni agenzia ha un proprio titolare ed è autonoma. Privacy policy | Policy utilizzo | Cookie policy