Trilocale in vendita

Torino, Via borgaro - Madonna Di Campagna
€ 159.000
3 locali 3 locali
73 Mq 73 Mq
1 bagno 1 bagno

Trilocale in vendita

Torino, Via borgaro - Madonna Di Campagna

Descrizione annuncio

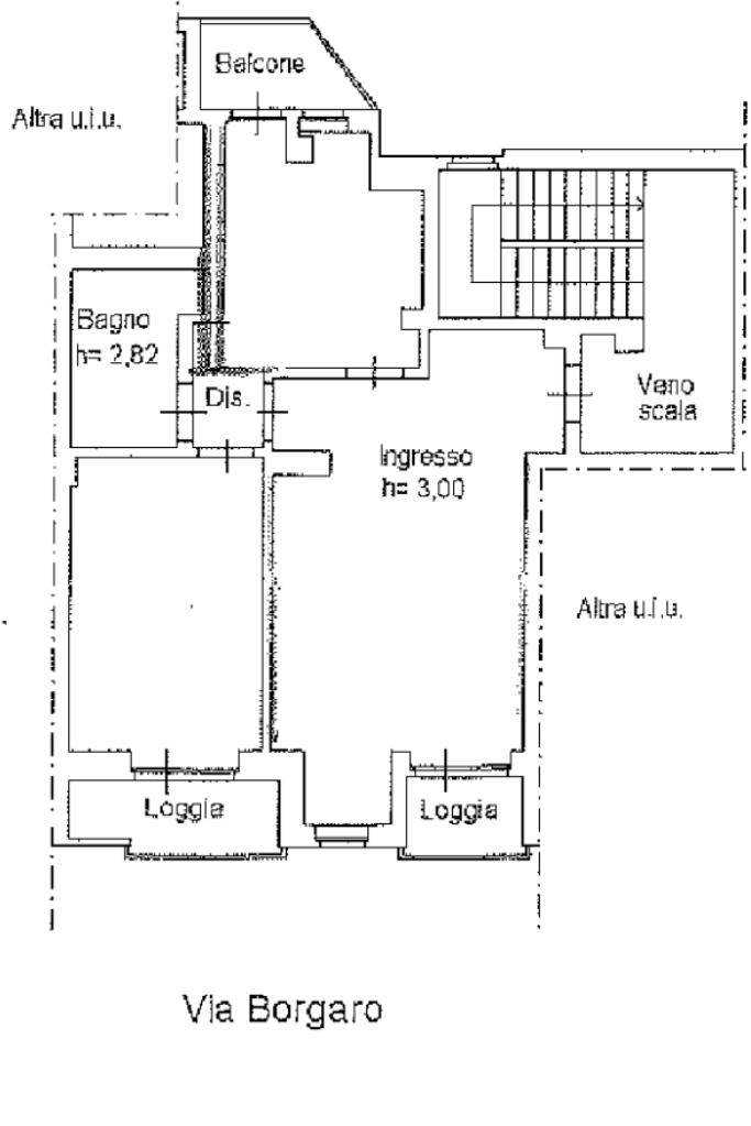
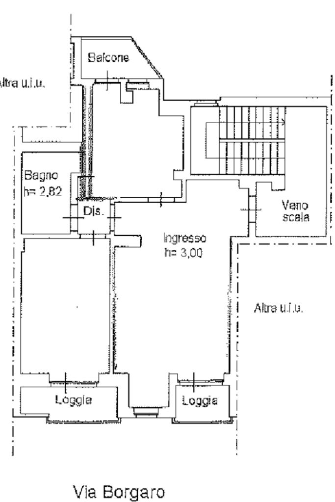
La soluzione si trova in via Borgaro, in prossimità di via Portula, nel cuore di Madonna di Campagna. La zona è servita da diverse attività commerciali, supermercati ed è circondata da aree verdi pubbliche tra le quali il giardino dedicato alle donne operaie della fabbrica Superga e il vasto parco Dora. Nelle vicinanze vi sono le fermate dei tram 3 - 9 e del bus 72 – 72/; risulta agevole accedere all’autostrada A55 e la Torino - Caselle che distano solo 8 minuti. Lo stabile, dotato di ascensore è stato edificato negli anni Sessanta ed è elevato su otto piani fuori terra. L’appartamento si trova al primo piano. Dal portoncino blindato d’ingresso siamo accolti nel living, composto da una generosa metratura e completato da un angolo cottura a vista con finestra. La zona giorno è servita inoltre da una portafinestra, la quale consente l’accesso al balcone avente affaccio sulla via principale. Il bagno, con impianto di ventilazione meccanica, è separato da un apposito disimpegno, ha la doccia e i sanitari utili oltre l’allaccio per la lavatrice. La camera da letto, funzionale e semplice da arredare, è dotata di una portafinestra, la quale permette di accedere al secondo balcone avente affaccio sempre su via Borgaro. La seconda camera invece è dotata di una portafinestra la quale permette di accedere al terzo balcone della casa, avente affaccio sull’interno cortile. All’occorrenza, sulla base delle proprie preferenze potrà essere gestita come camera per i propri hobby oppure come ulteriore camera da letto. La doppia esposizione garantisce luminosità e ariosità in tutta la casa. Il riscaldamento è centralizzato, dotato di termovalvole, volto a ottimizzare sia costi che consumi. Inoltre è presente l’impianto di aria condizionata canalizzato. La soluzione si presenta completamente ristrutturata a nuovo ad inizio di quest’anno, con particolare riferimento alla pavimentazione in gres effetto marmo di tonalità chiara e venature in contrasto. Completa la proprietà la cantina al piano interrato.

Mostra tutto

Nelle vicinanze

Trasporto pubblico Trasporto pubblico
Principi D'Acaja
Principi D'Acaja
2,4 Km
Bernini
Bernini
2,5 Km
Madonna di Campagna
Madonna di Campagna
640 m
Torino Dora GTT
Torino Dora GTT
1,4 Km
Largo Borgaro
Largo Borgaro
290 m
Ricariche auto elettriche Ricariche auto elettriche
Bluetorino Stradella
470 m
Lidl Altessano
1,5 Km
Edit Torino
1,9 Km
Bluetorino Risorgimento
2,3 Km
evway TO Statuto
2,5 Km
Scuole Scuole
Scuola Media Statale Piergiorgio Frassati
340 m
Istituto per il commercio succursale Boselli
470 m
Scuole
640 m
Scuola Elementare Guido Gozzano
700 m
Asilo Nido "La Nidiata"
730 m
Farmacia Farmacia
Sardi
150 m
Farmacia Piazza Villari
170 m
Toscana S.N..C
300 m
Calvo
330 m
Santa Chiara
440 m
Ospedali Ospedali
Amedeo di Savoia
1,1 Km
Ospedale Amedeo di Savoia
1,1 Km
Ospedale Maria Vittoria
1,9 Km
Ospedale Oftalmico
2,7 Km
Ospedale San Giovanni Bosco
3,0 Km
Supermercati Supermercati
Supermercati
420 m
Prestofresco
470 m
Carrefour Market
500 m
Pittarello
710 m
Bennet
720 m
Negozi Negozi
Sapori del Palato
350 m
Negozi
480 m
Panetteria Costa Milena
1,2 Km
Calliope
1,3 Km
Piazza Italia
1,3 Km
Bar Bar
Supermarket
530 m
Bar Tabacchi
610 m
Bar
960 m
Vinosteria da Celestino
1,1 Km
Bar
1,4 Km
Ristoranti Ristoranti
Pizzeria Gli Ulivi
300 m
Linopassamilvino
480 m
La Paella
490 m
Moderno
510 m
Millefiori
540 m
Mostra tutto

Caratteristiche

Rif.:
61190543
Piano:
1 di 7 con ascensore (Piano basso)
Balconi:
3
Camere da letto:
2
Arredamento:
Assente
Condizionamento:
Autonomo
Mostra tutto
Prezzo Prezzo
€ 159.000
Rata mutuo Rata mutuo
€ 742 / mese
Proponi il tuo prezzoProponi il tuo prezzo
Immobile valutato con T·Valuta

Classe Energetica

C
C
C
C
C
C
C
C
C
EP globale non rinnovabile:
115.53 kW h/m² anno
EP globale rinnovabile:
8.34 kW h/m² anno
EP invernale del fabbricato:
EP estiva del fabbricato:
Anno di costruzione:
1965
Riscaldamento:
Centralizzato
Tipo impianto:
A radiatori
Tipo alimentazione:
Metano

Ti interessa visionare l'immobile?

Fissa un appuntamento  Fissa un appuntamento

Richiedi informazioni

Clicca su Leggi per aprire l'informativa
* Questi campi sono obbligatori

Calcola il tuo mutuo

Semplice e senza impegno
Anticipo

( % )
Mutuo

( % )

pochi semplici passi

inserisci i tuoi dati
Questionario completato
Grazie per aver richiesto un appuntamento senza impegno con un nostro Consulente del Credito e Assicurativo.

Hai inserito correttamente tutti i dati necessari e a breve riceverai una e-mail con un link da convalidare per inviare i tuoi dati.
Affiliato
Studio Mdc Sas
Via Borgaro, 72/d 10149 Torino (TO)

Il nostro staff


  • Michele Prencipe
    Affiliato

  • Valerio Bovero
    Collaboratore

  • Giovanna Bonadonna
    Collaboratrice

  • Antonio Drammis
    Collaboratore

  • Sara Mureu
    Coordinatrice
Via Borgaro, 72/d 10149 Torino (TO)
Zona: Madonna di Campagna-Via Borgaro
Mostra su mappa
Orari: Dal Lunedì al Venerdì: dalle ore 09.00 alle ore 12.30/dalle 15.00 alle 20.00 Sabato: dalle ore 09.00 alle ore 12.30/dalle 15.00 alle 18.00 Domenica: chiuso
Affiliato
Studio Mdc Sas
Via Borgaro, 72/d 10149 Torino (TO)

2026 Tecnocasa Franchising S.p.A. - P. IVA 08365160152 - Via Monte Bianco 60/A 20089 Rozzano (MI). Ogni agenzia ha un proprio titolare ed è autonoma. Privacy policy | Policy utilizzo | Cookie policy